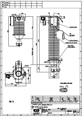
升降装卸料套筒
The Loading Bellow is used to convey (vertically by gravity) loose products from a storage bin or silo to a tank truck, container, an open lorry or for the creation of "heaps" in large squares or in the ship-holds.
散状物料伸缩装料器用于重力流输送松散的物料,是物料从储存料仓、料斗单元进入封闭的槽车或集装箱、或者开放的运料车、或者使物料在大型堆场或运输船上形成料堆。

These loading products can be powder, granules, pellets or chips, cereals etc.
Depending on the loading products or application, the Loading Bellow can be equipped with or without automatic cleaning dust filter (built-in filter), ventilation blower, different type of infeed devices like silde gate valve, butterfly valve, rotary valve, a feeding screw conveyor, a tube chain conveyor, a belt conveyor or even a pnenmatic conveying system etc.
And the outer duct is in flexible material, and inner duct can be either in flexible material or metal telescopic tubes in case of abrasive products.
The loading head can be modular positioning cone with specially designed conic rubber coating which provides accurate targeting and maximum sealing, or can be different types of skirt desgin for open truck or ship loading.
它适合细粉状、小粒状、切片颗粒以及谷类等等。
取决于应用场合及物料特征,伸缩装料头可以自带或不带自动反吹除尘器及排气风机、可以配置各种不同类型的上游进料设施,如插板阀、蝶阀、旋转阀、进料螺旋、管链输送机甚至是气力输送系统。
装料头底部可以是锥形外带特殊设计的橡胶涂层以便快速对中和最大程度地自然密封,也可以是不同形式的裙形设计以适合开放的装料车或装船等等。

Per client's request, we can also provide multiple Loading Bellow Group for faster and easier loading, and no need to move the tanker / container trailer. For oxygen sensitive product loading, we can also introdce an air replacement and nitrogen blanketing system along the whole loading process. Blow process flowsheet is an example of what we designed and delivered for a customer's tanker loading system for loading BPA products (sensitive to oxygen) with complete nitrogen protection system.
根据用户的特殊需求,我们还可以提供伸缩装料头群组设计以便快速和方便地装车操作、避免来回移动罐车或集装箱拖车。对于对氧气敏感的物料装车,我们还可以设计一体化空气置换和氮气覆盖系统,最大程度地避免装料过程中物料与氧气的接触。下面的流程参考图就是我们专门为客户设计和提供的双酚A氮覆盖槽车装车系统。

新加坡
TEL 0065 6321 9157
FAX 0065 6324 1513
中国北京
TEL 0086 10 5977 1616
FAX 0086 10 5977 1515
info@compassbulk.com